Cascina in vendita a Crespiatica

€ 25.000,00
locali 4
locali
superficie 120 mq
superficie
Numero Bagni 0
bagni
Piano Multipiano
piano
gallery

Studio Casa Pandino

Via Umberto I 32

INVIA MAIL
CHIAMACI
Cascina in vendita a Crespiatica
Cascina in vendita a Crespiatica
Cascina in vendita a Crespiatica
Cascina in vendita a Crespiatica
Cascina in vendita a Crespiatica
Cascina in vendita a Crespiatica
Cascina in vendita a Crespiatica
Cascina in vendita a Crespiatica
Cascina in vendita a Crespiatica




Studio Casa Pandino

Via Umberto I 32

INVIA MAIL
CHIAMACI

CONDIVIDI

Cascina da Ristrutturare, 120 mq, Crespiatica

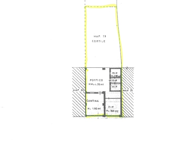
Rif. 604895 - IDEALE PER COSTRUIRE DUE ABITAZIONI. DA RISTRUTTURARE, porzione di rustico posto su due livelli e composto da cantina 4 ripostigli e portico di 20mq. al piano terra e 2 locali al piano primo. Cortile privato di 130mq. circa. Per informazioni, visite senza impegno e valutazione GRATUITA del tuo immobile chiama il n. 03731973901 / 3355696196 - Studio Casa Pandino Via Umberto I° 32. In alternativa scrivi una mail all'indirizzo pandino@studiocasa.it con la tua richiesta, verrai ricontattato in meno di 48 ore! Seguici anche sul nostro sito www.studiocasa.it

Dettagli

contratto
contratto
vendita
tipologia
tipologia
Cascina
superficie
superficie
120 mq
locali
locali
4
piano
piano
Multipiano
camere
camere
2
disponibilità
disponibilità
libero
condizioni
condizioni
da Ristrutturare
riscaldamento
riscaldamento
Assente
arredamento
arredamento
Non Arredato

Mappa

Efficienza Energetica

Classe Energetica  
Indice di prestazione energetica globale (epgl,nren) 0
Prestazione energetica del fabbricato ND inverno  -  ND estate

Mutuo

Prezzo: (€)
Importo: (€)
Tasso: (%)
Durata: (anni)


Rata da
€67,61
al mese
ANTICIPO
7.500,00  (30 %)

MUTUO
17.500,00  (70%)
 

Contattaci per maggiori informazioni!

Nome
Cognome
Telefono
Email
Indicaci la tua disponibilità

Testo
Avendo acquisito, letto e compreso le informazioni fornite dal titolare ai sensi degli Artt. 13-14 del GDPR, l’interessato:

al trattamento dei dati per i fini indicati nella suddetta informativa (qualora essi non rientrino nel campo di applicazione dell’Art. 7 comma 1 lettere dalla b) alla f) del Regolamento Europeo 679/2016 e dal D.Lgs. 196/2003 così come integrato dal D.Lgs 101/18).

al trattamento dei propri dati personali per la comunicazione degli stessi ai soggetti e per le finalità indicati nell’informativa (nel caso in cui non rientri in una delle ipotesi di esenzione di cui all’Art. 89 del Regolamento Europeo 679/2016) secondo il contratto di concessione ed affiliazione con le agenzie Studio Casa.
 
il conferimento dei dati personali per l’invio di newsletter e altro materiale pubblicitario tramite posta elettronica e altri mezzi cartacei per un tempo massimo di 24 mesi. I dati personali saranno conservati fino all’eventuale recesso del consenso inviato con le modalità riportate nell’informativa.

Immobili simili alla tua ricerca

Non è stato trovato alcun immobile simile nello stesso comune




G.3E. S.r.l.
Via Angelo Maj, 1/N - Bergamo (BG)
P.I.V.A.: 03756940163

INFORMATIVA PRIVACY    COOKIE POLICY

Seguici su Facebook Seguici su Twitter

© 2018 Tutti i diritti riservati